hem

info

projekt

FÖRENINGSGATAN

    På hög höjd med 1960-talet

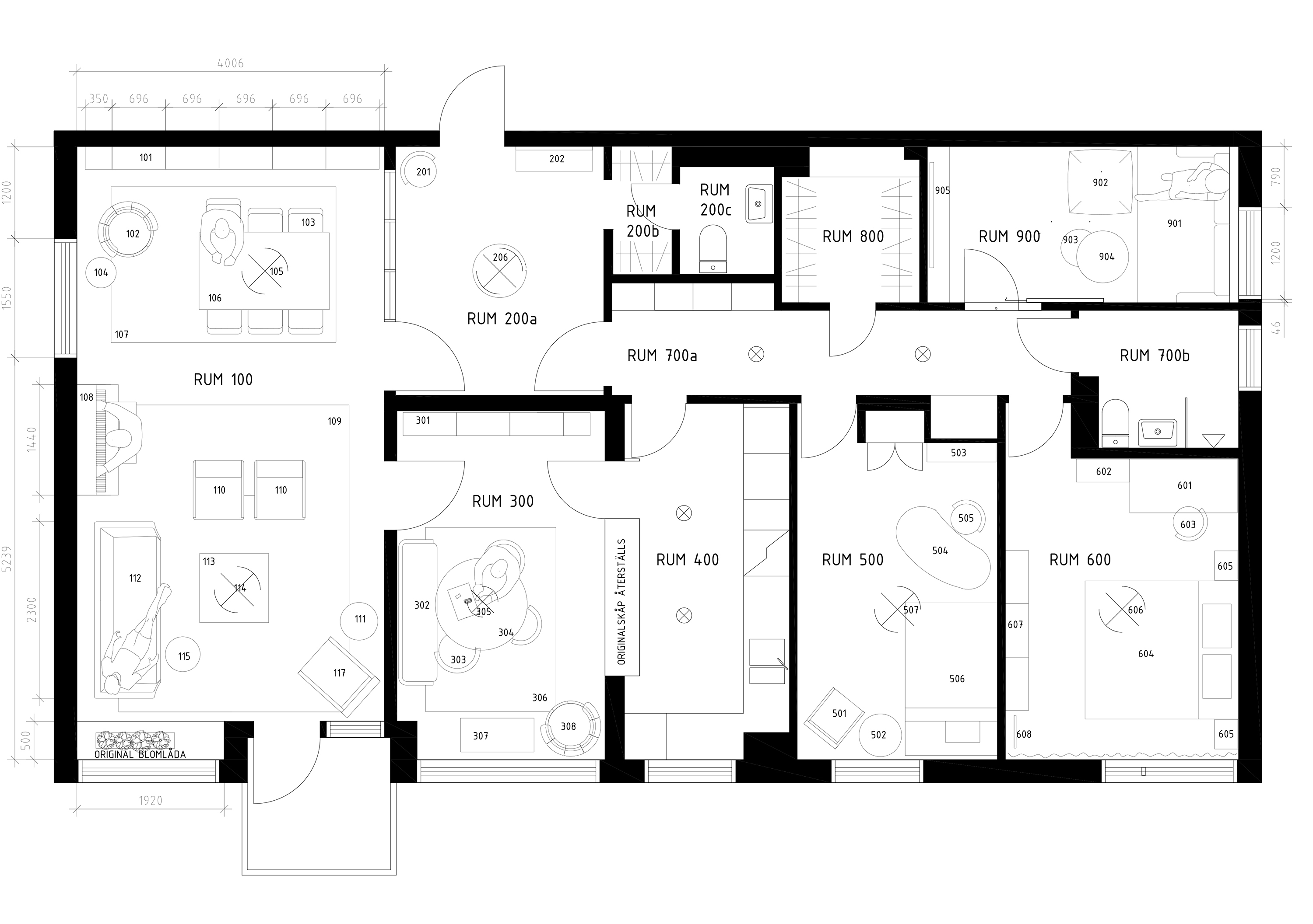
    • Efter två decennier på olika adresser runt om i världen ville familjen Lindvall tillbaka till Göteborg. När en lägenhet högt upp i ett av husen på Föreningsgatan blev till salu, gjorde de slag i saken. De vita 12-våningshusen ritades av Nils Einar Eriksson, arkitekten bakom bl a Göteborgs konserthus, och stod inflyttningsklara i februari 1960. Nils Einar Erikssons omisskännliga signum av vackra kompositioner, högkvalitativa planlösningar och sinnliga såväl som praktiska detaljer genomsyrar husen. Lägenheten familjen kom över hade, till skillnad från många andra i samma hus, den ursprungliga planlösningen intakt och många originaldetaljer bevarade (om än ibland förvanskade och överbyggda). Familjen var mån om att återställa den ursprungliga karaktären av lägenheten och materialpaletten sättes varsamt ihop utifrån interiörreferenser från Nils Einar Erikssons samtida miljöer i kombination med familjens egna bohag. Förutom färg och materialpalett önskade de även hjälp att programmera och möblera upp ytorna för att hitta en önskad form för både volymer och beteende att ta plats.


    • ÅR:2024
    • BESTÄLLARE: Privat
    • PLATS: Föreningsgatan, Göteborg
    • STLK: 114 kvm
    • FOTO & BILDER: Malcus arkitektur
Det igenbyggda skåpet mellan matsal och kök frilades och målades i NCS S-5005-G20Y
Den patinerade eklisten flankeras av en djupblå heltäckningsmatta i ull på ena sidan och en brun marmorerad linoleummatta på den andra
Hall mot korriodor före inflytt
Hall mot korridor efter inflytt